We’ve got EXCITING news – and we can’t wait any longer to share it! After many months of behind-the-scenes planning (and adapting to the challenges of life in a global pandemic) we can finally announce that the Bobby Berk team is making a big move- literally. We’ve purchased a house! But this house isn’t your average home – it’s our new office space, and we’ll be sharing the entire renovation process right here with you.
You probably know by now that we’re no stranger to large-scale design projects. Besides having completed over 50 Queer Eye home makeovers, Bobby and our team have tackled a total renovation of Bobby’s Parents’ House and multiple model homes. But what makes this project extra special (and unique) is that it’s the space our entire team will be spending lots of time in. And because it’s so personal, we want to make sure we get everything right. (We will be staring at these walls 5 days a week after all). Plus, there’s the added challenge of turning a 3,000 square foot home into a functional office, studio space, and showroom. But before we get into those design details, you’re probably wondering how exactly this all come about – and why did we choose a house in the first place? Don’t worry, all will be revealed! And each week, we’ll also be bringing you an update on our progress – and breaking down each and every space.
Keep scrolling to read all about why we decided to make the move now, why we chose a house, and see all the exciting renovations we’ll be making to the new space.
To see all the details on this project and how it’s progressing, check out these posts: All The Construction Under Way (And The Progress We’ve Made) and The Design Details & Mood Boards For Every Room.
Why We Bought A House
What inspired us to take the leap and relocate to a new office? After several years of working from a smaller office in downtown Los Angeles, we realized at the end of 2019 that we were quickly running out of space (and running into each other). Between material samples bursting out of closets, supplies stacked in a hallway (and a growing team), the compact space just wasn’t cutting it. So we began a search for a space that would meet our needs – and give us plenty of room to grow.
Fast forward a few months (and lots of real estate listings later). Bobby stumbled upon a space that might not have seemed like an obvious office: a 4 bedroom house just a few miles from our current locale. But with a little bit of vision (Ok, maybe a lot), we saw the potential in this property, and how it could help our team with everything we needed. So we snatched up this new – and much larger space – and started to dream up ideas for how we could make it into the ideal office.
Our Plans For The New Space
Since we would be tripling the amount of square footage from our previous workspace, the new office would give us plenty of opportunities to expand and improve upon all areas of the business. Besides larger work areas for the team, we would now have room for:
- A full materials library for the design team and a proper conference area for client meetings
- A digital and creative studio to create content and photography
- Rooms to showcase Bobby’s furniture, art, and wallpaper.
- A full kitchen for Zach to whip up new recipes (and shoot video to share with all of you).
But with all these grand plans in place, little did we know that in March of 2020, Covid-19 would throw everyone (and everything) for a loop – including our new office. Deadlines for construction were pushed back, demo came to a screeching halt, and our entire team transitioned to another office: working from home. But while we all social-distanced, it did give us the chance to really take the time to focus on all the details – and how the space could work best for our team. When we were able to continue on construction, we then had a clear plan in mind for how we would be modifying the existing floor plan and bring in the Bobby Berk touch.
Meet Our Team
So who exactly will be inhabiting this new office? Meet the design and creative teams that make the magic happen at Bobby Berk.
The Design Team
From start to finish, Adam and Awit manage all the details of every design project we take on. Working closely with Bobby, they’re the ones who select materials, manage contractors and handle the hundreds of other tasks that go into making a space truly special.
The Creative Team
From social media to sponsorships, creating content for this website to keeping things running smoothly, the creative team has plenty on their plates. Creative Director Brady is the one overseeing all the action, with Sydney staying on top of all brand and marketing needs. Logan is our resident Editor, crafting content for the website and filling in for all things creative, while Janet helps everyone with everything they need (literally). And for all things food and fitness, Zach has us covered.
BEFORE
So what did the house look like before we got our hands on it? Let’s just say it was firmly stuck in the 80s. But underneath some outdated tile and questionable carpet, there’s a bright and sunny space just waiting to shine. Here’s what the space looked like before – and all the cosmetic changes we plan to put in place in every room.
The Floorplans
We knew that making this home into a functional office would require more than few adjustments to the floorplan. Here, we show you how the layout looked like when we first laid eyes on the space – and exactly how we plan on modifying it for our needs.
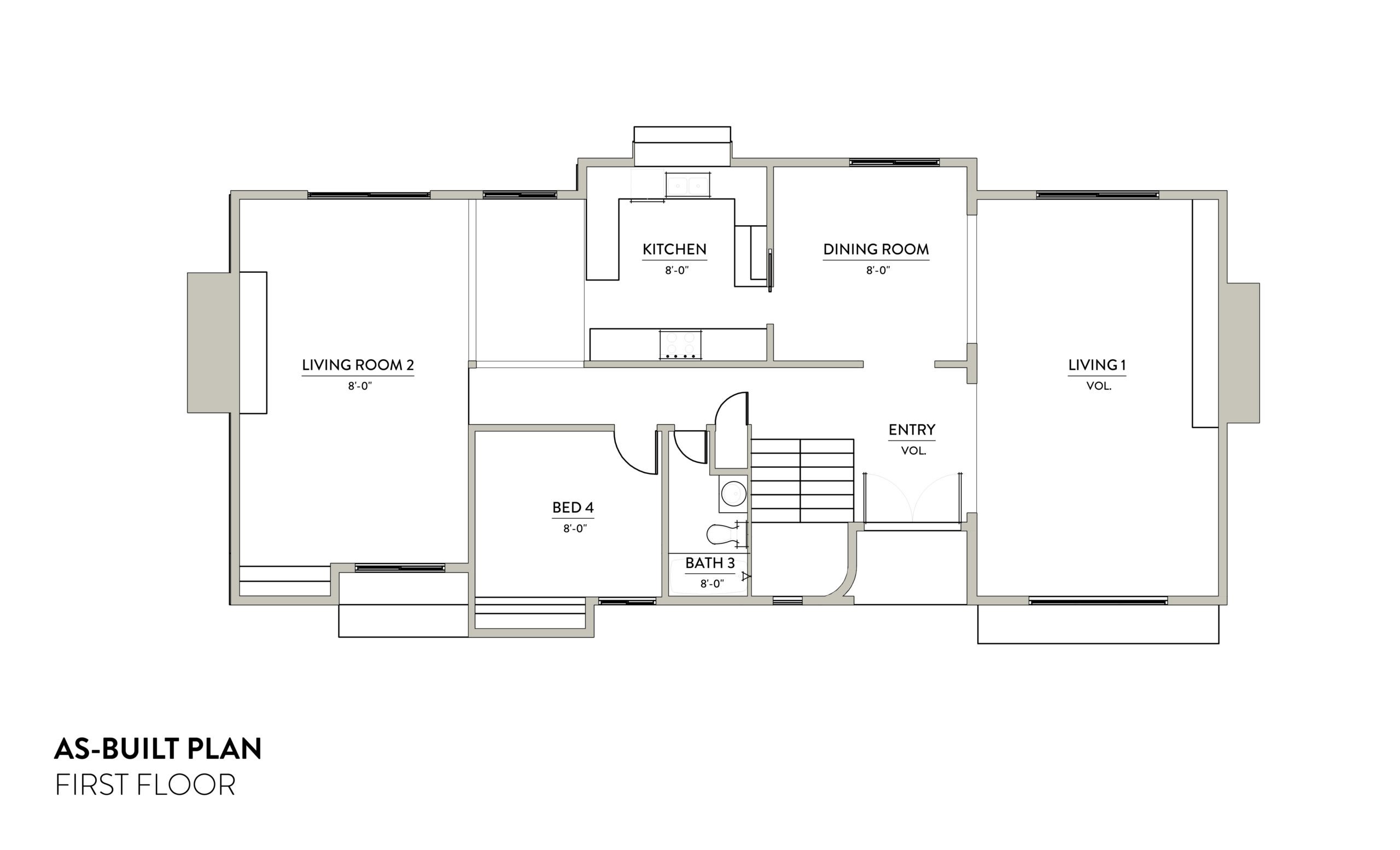
FIRST FLOOR
On the first floor, our main objective was clear: Open up the space to create a more connected (and modern) layout. So we started with the obvious- knocking down walls! We eliminated the long wall that separates the kitchen and dining room, creating a continuous flow throughout the entire downstairs. What was once a crowded and cramped kitchen will become the centerpiece, with an oversized island and lots of counter space (perfect for Zach to put his cooking skills to good use). The adjoining dining area will also be opened up – with a new set of doors also allowing for al fresco dining. While the layout of the living room will remain mostly unchanged (including the gorgeous arched entryways), we will be giving the fireplace a fresh new look that fits with the Spanish style of the exterior.
In the second living room space (which will serve as a conference room) we added new openings on both ends of the room – with a set of french doors opening to a balcony in the front and folding accordion doors opening the entire back wall to the backyard (this is Southern California after all!) The lone downstairs bedroom will be converted into an office and meeting space complete with a custom banquette and table for taking calls or catching up on emails. And because every space needs to make a good first impression, the entryway is getting an all-new herringbone wood floor and with a set of seriously impressive arched doors.
SECOND FLOOR
We continued the theme of opening up upstairs- this time, by removing two walls that separated the guest bedrooms and main bedroom to create one large, l-shaped work area. This will allow our teams to stay connected on projects and have plenty of space to spread out. Existing closets will be optimized for storing supplies, material samples, and all the other tools of the trade. In the main bedroom, we plan to enclose an existing covered balcony to give us even more square footage and allow for a pair of cozy chairs in front of the fireplace (where we will all want to be at the end of a long day). The second bathroom gets a slight switch-up by reconfiguring the toilet, while the main bath will get a major modernization – complete with an open shower and freestanding tub.
Video Tour
Bobby is giving you an insider tour of the entire home (and a sneak peek into some of the big plans we have for the space).
Be sure to check in next week as we share our vision (and mood boards) for the entire home and if you have any questions, comments or just want to say ‘hi’ – please do in the comments below! We are so excited to have you on this new journey with us. And to see all the details on this project and how it’s progressing, check out these posts: All The Construction Under Way (And The Progress We’ve Made) and The Design Details & Mood Boards For Every Room.




















Love, love, love, your ideas and design style. I am looking forward to the entire transformation.
Lollett Jones-Boyce
This is so exciting !!! I can’t wait to see the transformation as you are the interior design legend . I’m so proud and thankful for all of you ! What great news and such a great idea !!!
Thanks so much! We are so excited to share this transformation with everyone. xx -B
Hi! If you need any furniture for your new office, we’re the leading Steelcase Dealership of SoCal! We can provide you the coolest commercial furniture for your ancillary spaces and the nicest height adjustable desks for your working areas. Feel free to reach out!
Bobby,
This is so fun and exciting! What a cool idea to transform a home into a great working space with room(s) to grow!
I look forward to watching the transformation as you are VERY inspiring!
Thanks,
Meghann
Thanks so much for your comment! We will be sharing more very soon. xx -B
I’m so excited for all of you!!!
Thank you so much! We can’t wait to share the final transformation in the future. Stay safe and inspired! xx -B
Wow! So excited for you and the team! Can’t wait to see all of the transformations. I will follow along every step of the way. Yay
We can’t wait to blow you all away with the final looks! Stay safe and inspired. xx -B